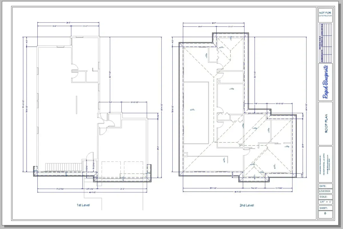
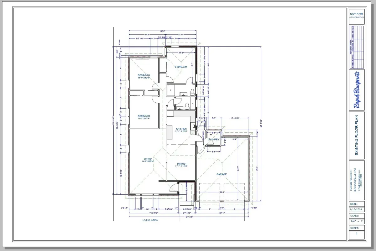
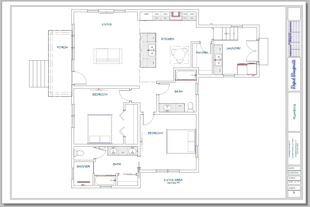
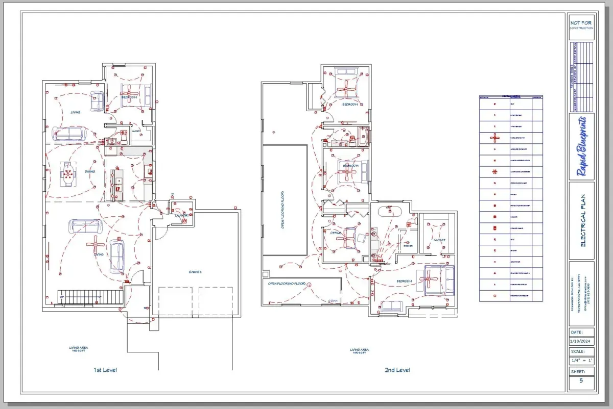
See Our Recent Blueprint & Planning Work

Real permit-ready plans delivered for commercial and residential projects.

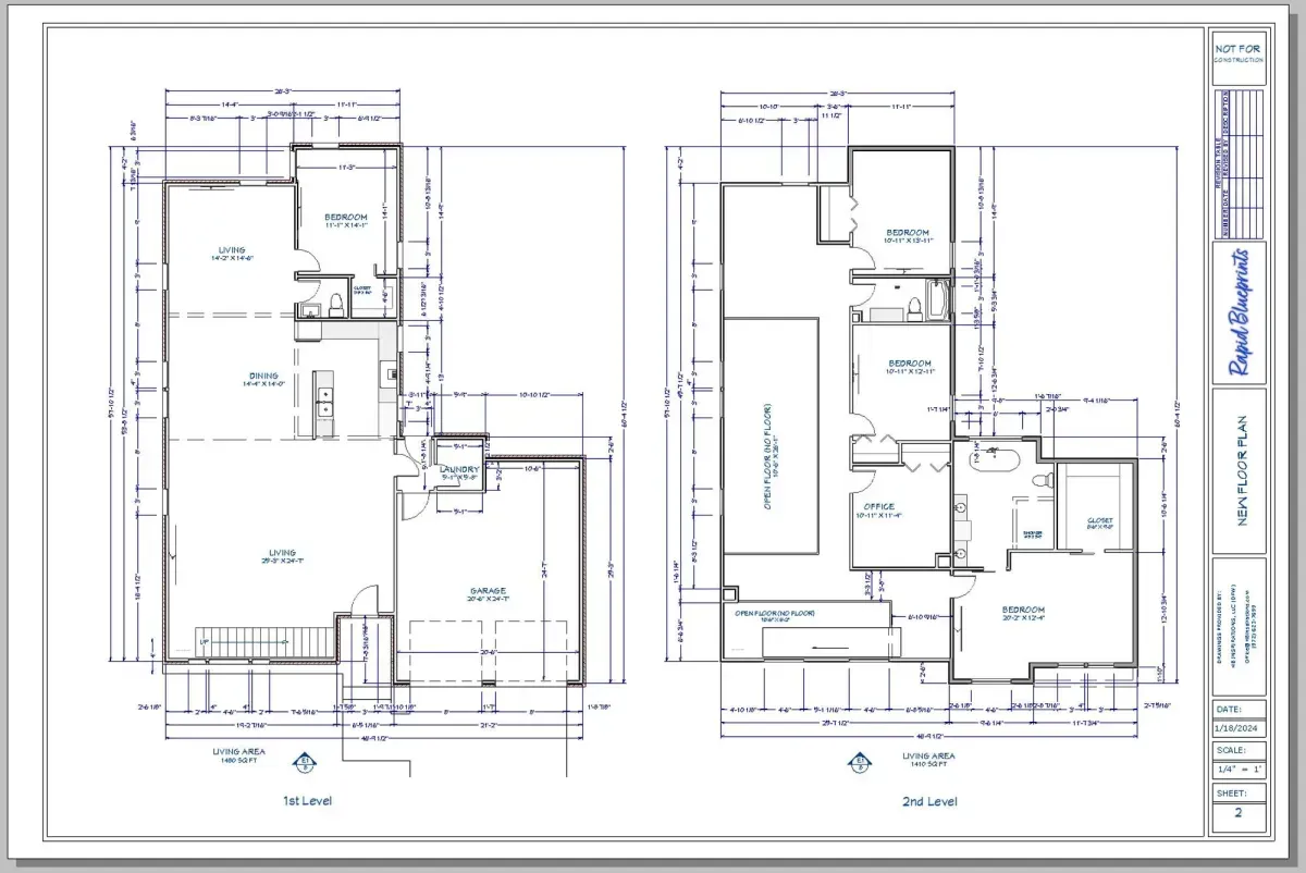
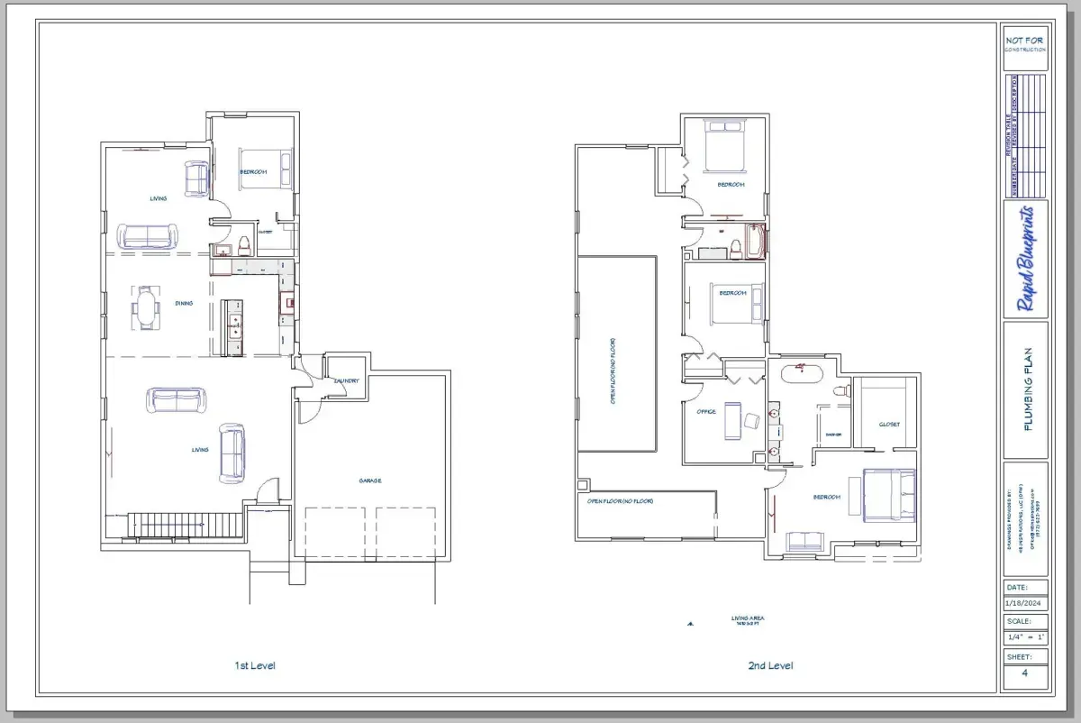
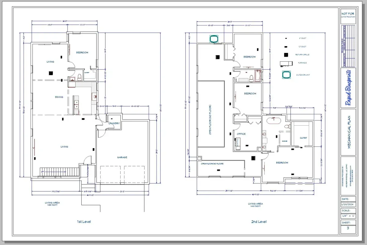
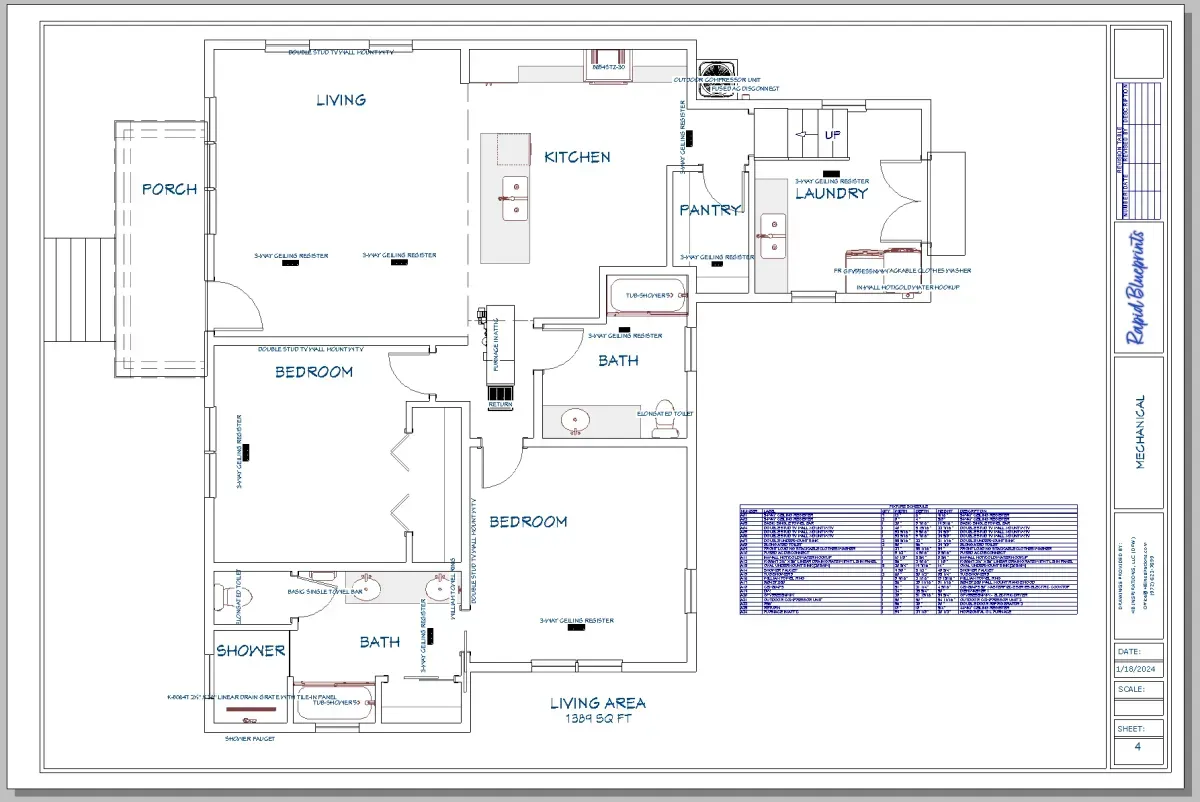
Plans shown are actual samples submitted for city building permit applications. Please note that city requirements may vary, and personal information has been removed for privacy.

See Our Recent Blueprint & Planning Work

Real permit-ready plans delivered for commercial and residential projects.

Plans shown are actual samples submitted for city building permit applications. Please note that city requirements may vary, and personal information has been removed for privacy.

Rapid Pack

Rapid Pack Plus

Designer Pack

Trusted by 100+ Customers

See what our happy customers say about our landscaping services

John R.

"Highly recommended"

"Rapid Blueprints consistently delivers precise and reliable blueprints that make my contracting projects run smoothly. Their team is responsive and always meets deadlines. Highly recommended for any contractor!"

Sarah H.

"Our dream home became a reality."

"Thanks to Rapid Blueprints, our dream home became a reality. They understood our vision perfectly and created detailed blueprints that matched our style. We couldn't be happier with the result!"

Michael T.

"I trust them for all of my projects!"

"Rapid Blueprints has transformed my business with their accurate and detailed blueprints. Their customer service is excellent, and they handle changes efficiently. I trust them for all my projects!"

Want to be sure of what we offer?

Schedule a Free Consultation!

No Pressure, No Selling. Just Clarity.

LEGAL

© Copyright 2026. UpScaleOS. All Rights Reserved.

Dallas, TX, USA