
Rapid Blueprints is a professional blueprint and plan service focused on helping projects move from planning to approval with confidence. We work with contractors, developers, and property owners who need clear, accurate, permit-ready plans that align with city requirements and real construction timelines.
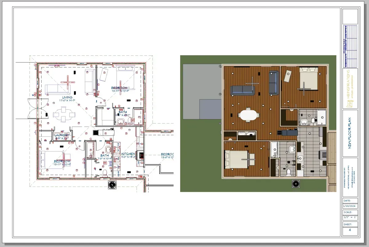
We create architectural blueprint and plan sets designed for city review, approval, and construction. From commercial improvements and additions to custom residential plans, our work is built to reduce revisions, avoid delays, and support efficient project execution.
Our mission is to make the permitting and planning process clear, efficient, and dependable. We aim to deliver plans that are ready for review, ready for approval, and ready to build—so projects can move forward without unnecessary setbacks.








We started Rapid Blueprints because we saw how often projects get delayed due to unclear plans, missed requirements, or unnecessary back-and-forth. We wanted to create a better, more reliable way to help contractors, developers, and property owners move projects forward with confidence.
Adrian’s passion for building started at a young age, working hands-on with his dad and brother on construction projects. By 18, he had launched his first business, and over the years he’s continued to grow his skills in design, drafting, and construction-focused planning. Today, Adrian focuses on creating clear, practical plans and uses technology to visualize projects and communicate details effectively.
Marissa has always been drawn to creativity and organization. From hands-on creative work to her corporate experience, she’s built a reputation for attention to detail, efficiency, and keeping projects running smoothly. She manages the planning process, coordination, and day-to-day operations—making sure nothing slips through the cracks. She’s also a proud mom of three boys, including two furbabies.
As co-founders of Rapid Blueprints, we work closely with our clients to deliver permit-ready plans that meet city requirements and support real construction timelines. Whether you’re tackling a commercial project or a residential build, we’re here to help you move from planning to approval with clarity and confidence.
Turnaround time depends on project scope and the selected service package. Most commercial and residential projects are completed within 5–7 business days from the start date. Larger or more complex projects may require additional time, which will be confirmed before work begins.
Yes. Revisions required due to city plan review comments are included at no additional cost for both commercial and residential projects.
If revisions are requested due to client-initiated design changes or scope changes after plans are finalized or submitted, additional fees may apply. Any added costs are communicated in advance.
All plan sets are delivered digitally. Printed copies can be requested for pickup or mailing if needed.
Printed plan sets: typically cost an additional, $200, depending on size and quantity.
Engineering Plans, 360 Degree Panoramas, Virtual Reality Views, & Construction Services.
Engineering services are available through engineering coordination, based on project scope and city requirements.
-Structural and MEP engineering coordination is available when required.
-Engineering fees vary depending on project complexity and whether stamped plans are needed.
-Engineering costs are quoted separately after project review.
Yes. We offer permit support and assistance for both commercial and residential projects.
Basic guidance may be included.
Full permit submission or processing assistance is available for an additional fee.
Permit-related costs vary by city and project scope.
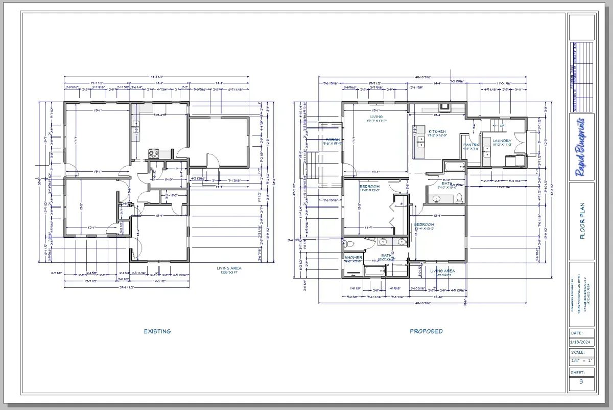
We document existing conditions carefully and recreate current layouts before proposing changes. This process helps ensure accuracy, consistency, and smoother reviews for both residential and commercial projects.
To begin, submit a quote request with your project details. Once reviewed, we’ll confirm scope, pricing, timeline, and any additional documentation needed before starting work.
We accept:
Zelle
Cash
Check
Wire transfer
Credit card (processing fees may apply)
Additional fees may apply for:
-Client-requested design or scope changes after finalization
-Engineering services requiring stamped plans
-Permit processing or expediting
-Printed plan sets or special delivery requests
-Priority or expedited turnaround requests
All additional costs are reviewed and approved before work continues.
Facebook
Instagram
TikTok